Bize Ulaşın
+90 544 730 24 24
|
info@ardeco.com.tr
ANASAYFA
HAKKIMIZDA
PROJELER
UYGULAMALAR
DANIŞMANLIK
İLETİŞİM
Projeler
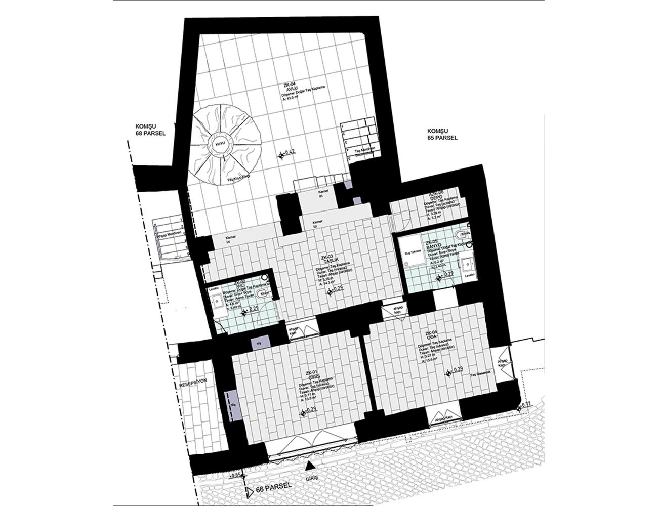
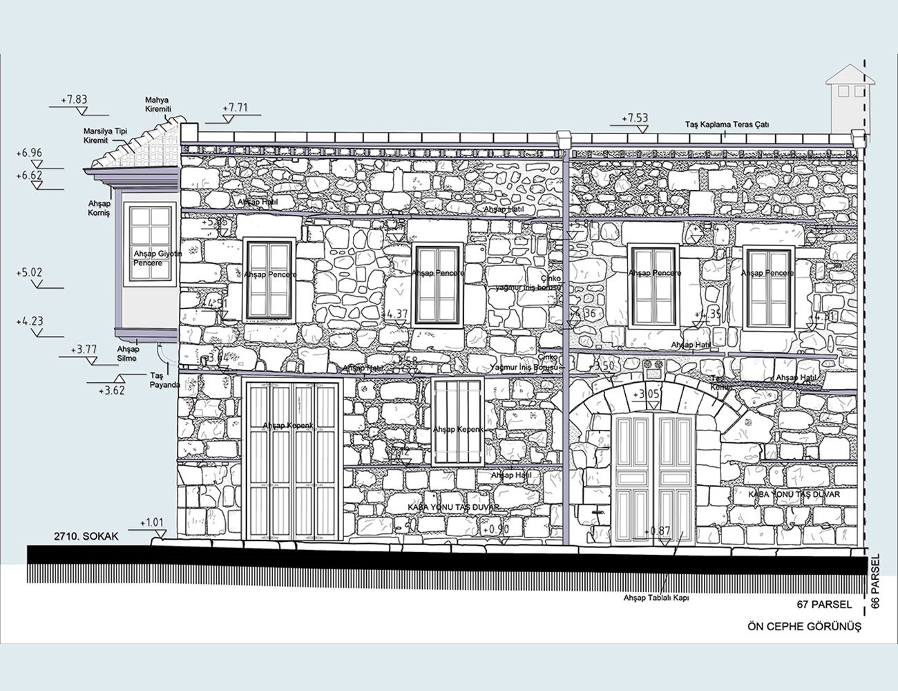
Tarsus Geleneksel Konut Projeleri
Mersin
Geri
Yukarı